塔式集中熔化、保温一体炉
栏目:有色金属熔化、精炼系列炉 发布时间:2019-12-19 16:38
塔式集中熔化、保温一体炉
    
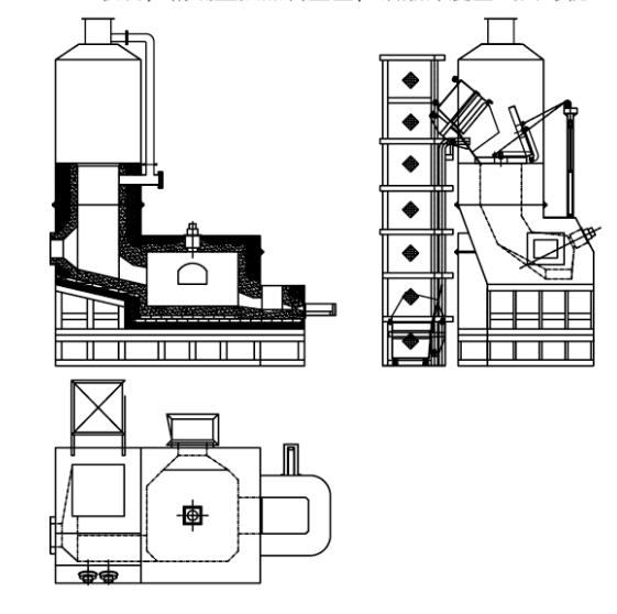
         本炉是铝合金集中熔化和保温一体的专用设备,采用塔式结构,连续熔化,自动投料,具有热效率高,烧损低,自动化程度高,使用寿命长等优点,采用分体式比例调节燃烧器,炉内温度保持在设定范围内,有效的控制了炉内氧化物的生产,进一步减少氧化烧损,此炉广泛应用于铝合金压铸,铸造集中熔化。
设备特点:
1、适用于多种燃料,天然气,液化气,柴油,重油均可;
2、
采用进口低速红外线和火焰燃烧器来熔化,能减少氧化物的产生,熔化室分为预热室和熔解室;
3、更加节能,在熔化过程中通过成熟的余热回收技术对预热区的铝料进行了预热,降低能耗,热效率高;
4、
特殊的炉体结构,优质的断热材料和耐火材料,使炉体散热极少,降低能耗,改善工作环境;
5、全自动投料装置,由提升,开盖,下降,关炉盖连续动作一次性完成。控制系统采用PLC可编程程序控制器,设计先进合理,运行安全可靠,具备与计算机通信功能。
6、
全触摸屏设备,实现实时监控炉内各区域的温度及烧嘴工作状况,精确监控加料重量,铝液深度全画面可视。
 



   




 

 
上一篇:铝水包式熔化炉
下一篇:铝锭加热炉
服务热线
13771547753
0510-85873695